Гибкие вставки для вентиляторов
Вставки гибкие к радиальным вентиляторам • Гибкая вставка прямоугольного сечения, или гибкая вставка нагнетания (ГВН) – устанавливается в месте соединения выхлопа вентилятора с воздуховодом (фото слева). • Гибкая вставка круглого сечения, или гибкая вставка всасывания (ГВВ) – устанавливается в месте соединения всасывающего отверстия вентилятора с воздуховодом (фото справа). Для комплектации жаропрочных вентиляторов (до +200°С) и вентиляторов дымоудаления (до +600°С) изготавливаются так называемые термостойкие гибкие вставки, которые изготавливаются из силиконового полотна или стеклоткани с применением углеродистой (оцинкованной) стали. Термостойкие гибкие вставки для вентиляторов имеют обозначения – ГВНТ (гибкая вставка нагнетания термостойкая) и ГВВТ (гибкая вставка всасывания термостойкая).
Гибкие вставки всасывания ГВВ и ГВВТ
|
armavent.ru
Гибкие вставки
Что такое гибкие вставки и для чего они используются? Ответы на эти вопросы и многие другие Вы получите прочитав данную статью о гибких вставках в системах вентиляции, ведь эти элементы имеют влияние на работу системы вентиляции и, поэтому, являются важной ее составляющей.
Гибкая вставка — это элемент (устройство) системы вентиляции, предназначением которого является гашение вибрационных воздействий от вент-машины (вентилятора), и предотвращение передачи вибрационных волн воздуховодам. Читайте подробнее о шуме вентиляции
Содержание статьи:
Гибкие вставки фланцевые для круглых и прямоугольных воздуховодов
Конструкция
Гибкие вставки фланцевые состоят из двух крепежных элементов — фланцев, между которыми расположен гибкий элемент.
Именно гибкий элемент выполняет роль глушителя вибрационных колебаний, за счет своей мягкости он может выполнять некоторые движения небольшой амплитуды, потому передает большую часть вибрации окружающему воздуху, при этом фланец, который крепится к воздуховоду остается неподвижным.
В качестве такого элемента обычно используют полиэтиленовую ленту вместе с текстильной тканью или неопреновой тканью.
Для изготовления фланцев гибких вставок вентиляции применяют оцинкованную сталь (в дымоудаляющих сетях), алюминий, алюминиевую фольгу. Конструкция гибких вставок одновременно проста и эффективна, что позволяет значительно уменьшить вибрационные действия. Меры по снижению вибрации с помощью виброизоляции вентиляторов представленны в данной статье.

Лента для изготовления гибкой вставки
Виды гибких вставок
В зависимости от вида вентиляторов, что используется, применяют несколько видов гибких вставок, которые соответствуют им.
Конечно же, еще гибкие вставки различают по виду присоединяемых воздуховодов и патрубков — круглые или прямоугольные.
Также, гибкие вставки изготавливают из разных материалов. В основном фланцы изготавливают из стали.

Гибкая вставка с ниппельным креплением
Виды по применению
Большая часть видов гибких вставок применяется для перемещения воздуха температурой от -30 до +85°С. Они состоят из обычных широко используемых материалов о которых шла речь выше.
Но существуют специальные виды вставок, которые подлежат использованию при температурах, которые значительно превышают указанные. Это температуры до +650°С. При этом фланцы гибких вставок выполняют из нержавеющей стали высокого качества, а соединяющий гибкий элемент — из стекловолокна.
Подбор гибкой вставки
Для подбора гибких вставок для вентиляторов учитывают номер вентилятора и его тип. Гибкие вставки можно устанавливать на входных и выходных патрубках вентилятора. Они характеризуются диаметром и длинной или при использовании прямоугольных гибких вставок — размерами сечения и длинной.
Гибкие вставки применяют не только на входных и выходных патрубках, но и между участками воздуховодов, так как эти виброизолирующие элементы демпфируют вибрацию воздуховодов, когда через них проходит большой поток воздуха. Также, они способны выступать в роли компенсаторов для системы вентиляции, и избавлять воздуховоды от температурных деформаций.
Установка
Для установки гибких вставок в монтажное положение, нужно прикрепить (прикрутить) сначала одну сторону гибкой вставки к патрубку вентилятора, потом другую сторону к воздуховоду.
В случае, если гибкие вставки выполнены с ниппельным соединением, последовательность присоединение остается той же.

Правильность монтажа вибровставок лучше всего проверять показателем эффективности работы виброизолирующих элементов: нужно измерить показания шума и вибрации в системе вентиляции. Для этого пользуются приборами для измерения шума.
Заключение
Использовать гибкие вставки в системах вентиляции и кондиционирования необходимо. Особенно, если используются мощные агрегаты.
Цена на гибкие вставки может быть разной, она зависит как от производителя, так и от размера и вида гибкой вставки. Средняя цена круглых гибких вставок на ниппельном соединении примерно 150 р. Цена прямоугольных гибких вставок больших размеров на фланцевом соединении может достигать 700
Видео: Гибкая прямоугольная вставка
Читайте также:
airducts.ru
Гибкая вставка круглого сечения для вентиляции – цена в Санкт-Петербурге
Гибкая вставка для вентиляции в основном изготавливается из полоски армированного поливинилхлорида, герметично соединенного с двумя стальными оцинкованными крепежными элементами.
Гибкая вставка применяется для установки на вентиляторах и приточно-вытяжных установках, для устранения вибрации и шума, передающихся на систему воздуховодов.
Рекомендуем устанавливать гибкие вставки непосредственно после вентилятора или приточно-вытяжной установки перед системой воздуховодов. Также гибкие вставки могут применяться для компенсации температурной деформации в системе воздуховодов.
Гибкие вставки круглого сечения могут иметь как ниппельное, так и фланцевое соединение, а прямоугольного сечения имеют фланцевое соединение из шины или уголка.
При монтаже поперечный шов гибкой вставки рекомендуется проклеивать и промазывать силиконом. Приклеивать желательно строительным феном или клеем мгновенного действия с пластификатором на основе цианакрилата например Loctite.
Наша компания выпускает гибкие вставки круглого сечения любых диаметров в пределах от 100 мм до 1250 мм.
ООО «ТПФ «СтройВент» изготавливает и продает гибкие вставки круглого сечения для воздуховодов.
Данный вид фасонных изделий используется для:
- Уменьшения шума и вибрации в системах вентиляции;
- Компенсации температурной деформации сети воздуховода.
Качественные и недорогие вставки
Мы предлагаем купить гибкие вставки круглого сечения диаметром от 100 до 1250 мм, выполненные из оцинкованной стали и полос армированного поливинилхлорида.
Продукция отличается:
- Высоким качеством;
- Удобством монтажа;
- Ценовой доступностью.
Заказать изделия нужного типоразмера с доставкой по Санкт-Петербургу и в любой другой населенный пункт страны могут юридические лица, с которыми компания «СтройВент» заключит соответствующий договор.
Потенциальным клиентам рекомендуем ознакомиться с прайс-листом, представленным на нашем сайте!
Для получения консультации и по всем вопросам относительно заказа вентиляционного оборудования и воздуховодов (информации про стоимость воздуховодов) обращайтесь по телефону +7 (812) 325-52-22 или отправляйте заявку на e-mail [email protected].
Сделать заказ
www.stroyvent-spb.ru
Вставка гибкая круглого сечения, ООО Венти, г. Москва
Гибкая вставка является одним из неотъемлемых компонентов любой системы вентиляции с воздуховодами круглого сечения. Их применение позволяет уменьшить до минимальных пределов вибрационную нагрузку, передаваемую от вентилятора к вентиляционным каналам. Это, в свою очередь, позволяет решить сразу две задачи:
- Значительно снизить уровень создаваемых при эксплуатации вентиляции шумов;
- Существенно увеличить срок службы всей конструкции и ее отдельных элементов, благодаря нивелированию деструктивного воздействия вибрации.
Гибкие вставки используют в системах вентиляции, по которым осуществляется транспортировка неагрессивной среды. Классифицируют вставки по диаметру воздуховодов и всасывающих патрубков вентиляторов. Кроме того, различной может быть длина самого изделия.
Технические характеристики
| Вставка гибкая круглого сечения | ||||
| Ниппельное соединение | ||||
| Диаметр, мм | Длинна, мм | Цена | Длинна, мм | Цена |
| 100 | 150 | 230 | 240 | 380 |
| 125 | 150 | 240 | 240 | 390 |
| 140 | 150 | 250 | 240 | 400 |
| 160 | 150 | 260 | 240 | 420 |
| 180 | 150 | 280 | 240 | 450 |
| 200 | 150 | 290 | 240 | 470 |
| 225 | 150 | 310 | 240 | 510 |
| 250 | 150 | 310 | 240 | 510 |
| 280 | 150 | 360 | 240 | 580 |
| 315 | 150 | 390 | 240 | 640 |
| 355 | 150 | 470 | 240 | 770 |
| 400 | 150 | 530 | 240 | 860 |
| 450 | 150 | 600 | 240 | 970 |
| 500 | 150 | 670 | 240 | 1070 |
| 560 | 150 | 750 | 240 | 1210 |
| 630 | 150 | 850 | 240 | 1360 |
| 710 | 150 | 940 | 240 | 1500 |
| 800 | 150 | 1110 | 240 | 1780 |
| 900 | 150 | 1260 | 240 | 2010 |
| 1000 | 150 | 1400 | 240 | 2240 |
| 1120 | 150 | 1430 | 240 | 2300 |
| 1250 | 150 | 1460 | 240 | 2360 |
Устройство
Круглые гибкие вставки представляют собой конструкцию из двух ниппелей или муфт, которые соединены между собой при помощи тканевой прокладки. Для их изготовления применяют такие материалы:
- Ниппели или муфты созданы из оцинкованной стали толщиной 0,5 – 1,2 мм;
- Тканевая вставка выполнена их прогрессивных пластифицированных материалов, например, из неопрена.
Тканевая лента поглощает создаваемые вентилятором вибрации, что позитивно отражается на работе всей системы.
Гибкая вставка способна работать в условиях достаточно большого давления воздуха при температурном режиме от -40˚С до +80˚С. Помимо всего прочего, она также выполняет роль компенсатора температурной деформации в сети вентиляционных каналов.
В нашей компании вы можете приобрести не только гибкие вставки стандартных типоразмеров, но и заказать изготовление изделий с уникальными параметрами. В любом случае «Венти» гарантирует вам безупречное качество и наилучшие цены.
Перейти в прайс-лист
Заказать гибкую вставку круглого сечения вы можете по следующим телефонам:
8-800-222-17-13
+7 (495) 989-63-58
+7 (926) 838-50-82
xn--b1agjtz.xn--p1ai
Вставки гибкие для вентиляторовГибкие вставки предназначены для предотвращения передачи вибрации от вентилятора к воздуховоду и применяются в вентиляционных системах, перемещающих воздух в интервалах температур от -50 °С до + 80 °С и влажности до 60%. Материал, из которого изготавливаются вставки комбинированные: “сталь оцинкованная, материал армированный с пвх покрытием, сталь оцинкованная”. Возможно изготовление гибких вставок в термостойком исполнении (из тканей стеклянных конструкционных) для вентиляторов в жаростойком исполнении и вентиляторов дымоудаления. ![]() ![]() Габаритные и присоединительные размеры гибких вставокГибкие вставки круглые ГВкр![]() ![]() Габаритные и присоединительные размеры гибких вставок круглых Габаритные размеры гибких вставок круглых ГВкр
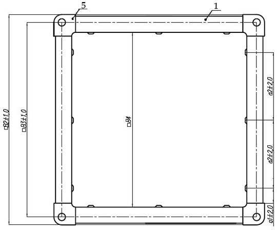
Гибкие вставки квадратные ГВкв![]() ![]() Габаритные и присоединительные размеры гибких вставок квадратных 1.* Размеры для справок Габаритные размеры гибких вставок квадратных ГВкв
Гибкие вставки квадратные из оцинкованной стали ГВквц![]() ![]() Габаритные размеры гибких вставок квадратных ГВквц
Цены по запросу |
www.tehventprom.ru
Вставка гибкая прямоугольного сечения, ООО Венти, г. Москва
Несмотря на то, что по основным техническим параметрам воздуховоды с круглым сечением превосходят прямоугольные аналоги, именно последние являются наиболее распространенным типом вентиляционных каналов. Это объясняется рядом их эксплуатационных и потребительских преимуществ, которые иногда играют доминирующую роль при определении конструктивных характеристик всех компонентов вентиляционной системы.
Технические характеристики
| Длина L = 150 мм. | Длина L = 240 мм. | |||||||||
| Размер, мм | Цена | Размер, мм | Цена | Размер, мм | Цена | Размер, мм | Цена | |||
| 100х100 | 180 | 500х300 | 720 | 100х100 | 290 | 500х300 | 1150 | |||
| 150х100 | 220 | 500х350 | 760 | 150х100 | 360 | 500х350 | 1220 | |||
| 150х150 | 270 | 500х400 | 800 | 150х150 | 430 | 500х400 | 1280 | |||
| 200х100 | 270 | 500х450 | 850 | 200х100 | 430 | 500х450 | 1360 | |||
| 200х150 | 310 | 600х200 | 710 | 200х150 | 500 | 600х200 | 1120 | |||
| 200х200 | 350 | 600х250 | 760 | 200х200 | 570 | 600х250 | 1220 | |||
| 250х100 | 310 | 600х300 | 800 | 250х100 | 500 | 600х300 | 1290 | |||
| 250х150 | 350 | 600х350 | 850 | 250х150 | 570 | 600х350 | 1360 | |||
| 250х200 | 400 | 600х400 | 890 | 250х200 | 640 | 600х400 | 1430 | |||
| 250х250 | 440 | 700х300 | 885 | 250х250 | 720 | 700х300 | 1430 | |||
| 300х100 | 350 | 700х350 | 940 | 300х100 | 570 | 700х350 | 1500 | |||
| 300х150 | 400 | 700х400 | 980 | 300х150 | 640 | 700х400 | 1580 | |||
| 300х200 | 440 | 700х450 | 1030 | 300х200 | 710 | 700х450 | 1650 | |||
| 300х250 | 490 | 700х500 | 1070 | 300х250 | 780 | 700х500 | 1720 | |||
| 300х300 | 530 | 800х300 | 980 | 300х300 | 860 | 800х300 | 1580 | |||
| 400х150 | 490 | 800х350 | 1030 | 400х150 | 780 | 800х350 | 1650 | |||
| 400х200 | 530 | 800х400 | 1070 | 400х200 | 860 | 800х400 | 1720 | |||
| 400х250 | 580 | 800х500 | 1160 | 400х250 | 930 | 800х500 | 1860 | |||
| 400х300 | 620 | 800х600 | 1250 | 400х300 | 1000 | 800х600 | 2000 | |||
| 400х400 | 700 | 900х400 | 1160 | 400х400 | 1140 | 900х400 | 1860 | |||
| 450х200 | 580 | 900х450 | 1200 | 450х200 | 930 | 900х450 | 1940 | |||
| 450х250 | 620 | 900х500 | 1250 | 450х250 | 1000 | 900х500 | 2000 | |||
| 450х300 | 670 | 1000х300 | 1160 | 450х300 | 1070 | 1000х300 | 1860 | |||
| 450х400 | 760 | 1000х450 | 1290 | 450х400 | 1210 | 1000х450 | 2080 | |||
| 500х200 | 620 | 1000х500 | 1340 | 500х200 | 1000 | 1000х500 | 2150 | |||
| 500х250 | 660 | 1000х600 | 1420 | 500х250 | 1070 | 1000х600 | 2290 | |||
Одним из главных недостатков любой системы вентиляции является создаваемая электродвигателем и крыльчаткой вентилятора вибрация, что приводит также и к повышенному образованию шума работающей конструкцией. Гибкая вставка позволяет эффективно и с небольшими затратами минимизировать негативное воздействие вибрационных нагрузок путем их гашения непосредственно на участке между вентилятором и воздуховодом.
Устройство и варианты выбора
Размеры гибких вставок соответствуют определенным стандартам и определяются моделью и типоразмерами использованного вентилятора и параметрами воздуховодов. Однако по желанию заказчика возможно изготовление гибкой вставки с оригинальными габаритными размерами.
Конструктивно гибкая вставка представляет собой три элемента:
- Прямоугольный фланец из шины для крепления к вентилятору;
- Аналогичный узел для фиксации к вентиляционному каналу;
- Тканевая лента, закрепляемая между фланцами.
Фланцы изготовлены из долговечного оцинкованного металла, мягкая вставка между ними – из пластифицированной капроновой ткани.
Надежные и качественные гибкие вставки производства ООО «Венти» обеспечивают снижение шумов и вибраций, а также отличаются длительным сроком службы и наиболее доступной ценой на столичном рынке.
Перейти в прайс-лист
Заказать гибкую вставку прямоугольного сечения вы можете по следующим телефонам:
8-800-222-17-13
+7 (495) 989-63-58
+7 (926) 838-50-82
xn--b1agjtz.xn--p1ai

Вентиляционные гибкие вставки предназначены для предотвращения передачи вибрации от вентилятора к воздуховоду и применяются в вентиляционных системах, перемещающих воздух в интервалах температур от -50 °С до + 600 °С и влажности до 60%. Помимо этого, вставки позволяют дополнительно герметизировать вентиляционные стыки и места соединений, обеспечивая большую надежность. В системах вентиляции гибкие вставки для вентиляторов очень важны, поскольку при вибрации крупные воздуховоды могут издавать сильный, мешающий работе шум или задевать стены в случаях, когда воздуховоды установлены слишком близко к ним.







