5. Общие правила выполнения документации
ГОСТ 21.1101-2013 “СПДС. Основные требования к проектной и рабочей документации”
5. Общие правила выполнения документации
5.1. Общие положения
5.1.1. При выполнении проектной и рабочей документации, а также отчетной технической документации по инженерным изысканиям для строительства следует руководствоваться положениями стандартов СПДС и ЕСКД.
Перечень стандартов ЕСКД, подлежащих учету при выполнении графической и текстовой документации для строительства, приведен в таблице Д.1 (приложение Д).
5.1.2. Документацию, как правило, выполняют автоматизированным способом на бумажном носителе (в бумажной форме) и/или в виде ДЭ.
Документы одного вида и наименования, независимо от способа выполнения, являются равноправными и взаимозаменяемыми. Взаимное соответствие между документами в электронной и бумажной формах обеспечивает разработчик.
Общие требования к электронным документам — по ГОСТ 2.051.
5.1.3. В графических документах изображения и условные обозначения выполняют линиями по ГОСТ 2.303. Допускается применение линий других типов, наименования, начертание, толщина и основные назначения которых устанавливаются в соответствующих стандартах СПДС.
5.1.4. В графических документах условные обозначения следует выполнять в основном черным цветом. Некоторые условные обозначения или их отдельные элементы допускается выполнять другими цветами. Указания о цвете условных обозначений приводятся в соответствующих стандартах СПДС. Если цвета условных обозначений, применяемых на чертежах и схемах, не установлены в стандартах, их назначение указывают на чертежах.
В подлинниках, предназначенных для изготовления черно-белых копий, цветные условные обозначения и их элементы следует выполнять черным цветом.
5.1.5. При выполнении графических документов применяют шрифты по ГОСТ 2.304, а также другие шрифты, используемые средствами вычислительной техники, при обеспечении условий доступности этих шрифтов пользователям документов.
При выполнении текстовых документов рекомендуется использовать гарнитуру шрифта Arial или Times New Roman.
5.1.6. Чертежи выполняют в оптимальных масштабах по ГОСТ 2.302 с учетом их сложности и насыщенности информацией.
Масштабы изображений на чертежах не указывают, за исключением чертежей изделий и других случаев, предусмотренных в соответствующих стандартах СПДС. В этих случаях масштабы указывают в круглых скобках непосредственно после наименований изображений в соответствии с ГОСТ 2.316 (пункт 4.19).
5.1.7. Чертежи на бумажном носителе и электронные чертежи (2D) могут быть выполнены на основе электронной модели (3D) здания или сооружения (ГОСТ 2.052).
5.1.8. Содержательная и реквизитная части ДЭ должны соответствовать требованиям стандартов СПДС и ЕСКД.
5.1.9. Структура и состав реквизитов ДЭ должны обеспечивать его обращение в рамках программных средств (отображение, внесение изменений, печать, учет и хранение в базах данных, а также передачу в другие автоматизированные системы) с соблюдением при этом нормативных требований по оформлению документов.
5.1.10. На рассмотрение, согласование, экспертизу и утверждение представляют копии документов проектной и рабочей документации, скомплектованные, как указано в 4.1 и 4.2.
5.1.11. Форма представления документов проектной и рабочей документации (бумажная или электронная), если она не указана в задании на проектирование, определяется разработчиком по согласованию с заказчиком. Допускается включать в состав проектной и рабочей документации документы в различных формах представления.
5.1.12. Правила передачи документации на электронных носителях, в том числе номенклатуру и формы необходимых учетных и отчетных документов, устанавливают в стандартах организации, разработанных на основе ГОСТ 2.051, ГОСТ 2.511 и ГОСТ 2.512.
5.1.13. Перечень сокращений слов, допускаемых в графических документах, составлен в дополнение к ГОСТ 2.316
и приведен в таблице Е.1 (приложение Е).5.2. Основные надписи
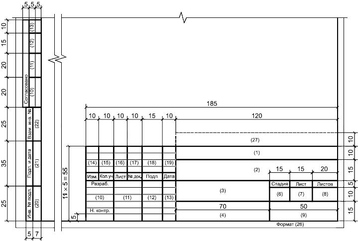
5.2.1. Каждый лист графического и текстового документа, как правило, оформляют основной надписью и дополнительными графами к ней. Формы основных надписей и указания по их заполнению приведены в приложении Ж.
Примечание — Основными надписями не оформляют текстовые документы, выполняемые в соответствии с 4.1.8, сметы и т.п.
Основную надпись располагают в правом нижнем углу листа.
На листах формата А4 по ГОСТ 2.301 основную надпись располагают вдоль короткой стороны листа. Для текстовых документов в табличной форме допускается, при необходимости, располагать основную надпись вдоль длинной стороны листа.
5.2.2. Содержание, расположение и размеры граф основной надписи, дополнительных граф к ней, а также размеры рамок должны соответствовать:
— на листах основных комплектов рабочих чертежей и листах графической части проектной документации — форме 3;
— на первом листе чертежей строительных изделий — форме 4;
— на первых или заглавных* листах текстовых документов и первых листах эскизных чертежей общих видов нетиповых изделий, оформляемых в виде выпуска, — форме 5;
* Для текстовых документов, выполняемых с титульным листом и оформляемых основными надписями, заглавным является следующий лист после титульного листа.
— на последующих листах чертежей строительных изделий, текстовых документов и эскизных чертежей общих видов — форме 6.
Допускается первый лист чертежа строительного изделия оформлять основной надписью по форме 5.
5.2.3. Если некоторые текстовые документы (например, спецификацию оборудования, изделий и материалов) выпускают без титульного листа, то в этом случае первый лист документа оформляют основной надписью по форме 3, последующие — по форме 6.
При оформлении основного комплекта рабочих чертежей отдельными документами документы, содержащие сплошной текст и/или в виде таблиц (например, общие данные, кабельный журнал и т.п.), оформляют как текстовые документы. В этом случае первый лист документа оформляют основной надписью по форме 3, последующие — по форме 6.
5.2.4. В отчетной технической документации по результатам инженерных изысканий применяют основную надпись:
— на листах графических документов, используемых в проектировании в качестве основы, — по форме 3;
— на первых листах других графических и текстовых документов — по форме 5, на последующих листах — по форме 6.
5.2.5. Основную надпись, дополнительные графы к ней и рамки выполняют сплошными толстыми основными и сплошными тонкими линиями по ГОСТ 2.303.
5.2.6. Таблицу изменений в основной надписи (графы 14 — 19) при необходимости допускается продолжать вверх или влево от основной надписи. При расположении таблицы изменений слева от основной надписи наименования граф 14 — 19 повторяют.
5.2.7. Расположение основной надписи и дополнительных граф к ней, а также размеры рамок на листах приведены на рисунках И.1 и И.2 (приложение И).
5.2.8. Расположение и размеры дополнительных граф для идентификации ДЭ проектная организация устанавливает самостоятельно.
5.2.9. Допускается дополнительно идентифицировать проектные документы с применением штрих-кода.
При этом в качестве реквизитов штрих-кода следует использовать обозначение документа, номер версии и обозначение формата документа. Дополнительно могут быть использованы код страны, код организации-разработчика и другие реквизиты.
Штрих-код рекомендуется размещать в правом нижнем углу листа над основной надписью.
5.3. Координационные оси
5.3.1. На изображениях здания или сооружения указывают координационные оси его несущих конструкций, предназначенные для определения взаимного расположения элементов здания или сооружения и привязки здания или сооружения к строительной геодезической сетке или разбивочному базису.
5.3.2. Каждому отдельному зданию или сооружению присваивают самостоятельную систему обозначений координационных осей.
Координационные оси наносят на изображения здания, сооружения тонкими штрихпунктирными линиями с длинными штрихами, обозначают в кружках диаметром 6 — 12 мм арабскими цифрами и прописными буквами русского алфавита (за исключением букв: Ё, 3, Й, О, X, Ц, Ч, Щ, Ъ, Ы, Ь) или, при необходимости, буквами латинского алфавита (за исключением букв I и О).
Пропуски в цифровых и буквенных (кроме указанных) обозначениях координационных осей не допускаются.
Цифрами обозначают координационные оси по стороне здания и сооружения с большим количеством осей. Если для обозначения координационных осей не хватает букв алфавита, последующие оси обозначают двумя буквами.
Пример — АА, ББ, ВВ.
5.3.3. Последовательность обозначений координационных осей принимают по плану, как показано на рисунке 1а: цифровые оси — слева направо, буквенные оси — снизу вверх или как показано на рисунках 1
5.3.4. Обозначение координационных осей, как правило, наносят по левой и нижней сторонам плана здания и сооружения.
При несовпадении координационных осей противоположных сторон плана в местах расхождения дополнительно наносят обозначения указанных осей по верхней и/или правой сторонам.
5.3.5. Для отдельных элементов, расположенных между координационными осями основных несущих конструкций, наносят дополнительные оси, которым присваивают обозначение в виде дроби, в числителе которой указывают обозначение предшествующей координационной оси, а в знаменателе — дополнительный порядковый номер в пределах участка между смежными координационными осями в соответствии с рисунком 1г.
Допускается координационным осям фахверковых колонн присваивать цифровые и буквенные обозначения в продолжение обозначений осей основных колонн без дополнительного номера.
5.3.6. На изображении повторяющегося элемента, привязанного к нескольким координационным осям, координационные оси обозначают в соответствии с рисунком:
2а — при их количестве не более 3;
2б — при их количестве более 3;
2в — при всех буквенных и цифровых координационных осях.
При необходимости ориентацию координационной оси, к которой привязан элемент, по отношению к соседней оси указывают в соответствии с рисунком 2г.
Рисунок 1
Рисунок 25.3.7. На планах жилых зданий, скомпонованных из блок-секций, крайним координационным осям блок-секций присваивают обозначения согласно 5.3.1 — 5.3.3, которые указывают в соответствии с рисунком 3а.
Координационным осям блок-секций, в том числе крайним, присваивают самостоятельные обозначения согласно 5.3.1 — 5.3.3 с добавлением индекса “с” (см. рисунок 3б). При необходимости на плане блок-секции указывают обозначения координационных осей здания, скомпонованного из блок-секций.
5.3.8. Трехмерную (3D) электронную модель здания или сооружения выполняют в единой планово-высотной системе координат.
Координатную систему трехмерной модели здания или сооружения изображают тремя взаимно перпендикулярными линиями с началом координат, расположенным в точке пересечения осей 1 и, А на нулевой отметке этого здания или сооружения в соответствии с рисунком 4.
Рисунок 4При этом для прямоугольного в плане здания (см. рисунок 1а) за положительное направление принимают: оси X — в сторону увеличения цифровых обозначений координационных осей, оси Y — в сторону увеличения буквенных обозначений координационных осей, оси Z — вертикально вверх от условной нулевой отметки здания.
5.4. Нанесение размеров, уклонов, отметок и надписей
5.4.1. Линейные размеры на чертежах указывают без обозначения единиц длины:
— в метрах с точностью до двух знаков после запятой — на чертежах наружных сетей и коммуникаций, генерального плана и транспорта, за исключением случаев, оговоренных в соответствующих стандартах СПДС;
— в миллиметрах — на всех остальных видах чертежей.
5.4.2. Размерную линию на ее пересечении с выносными линиями, линиями контура или осевыми линиями ограничивают засечками длиной 2 — 4 мм, наносимыми с наклоном вправо под углом 45° к размерной линии, при этом размерные линии продолжают за крайние выносные линии (или соответственно за контурные или осевые) на 0 — 3 мм.
При нанесении размера диаметра или радиуса внутри окружности, а также углового размера размерную линию ограничивают стрелками. Стрелки применяют также при нанесении размеров радиусов и внутренних скруглений.
При нанесении размеров на аксонометрических схемах технологических трубопроводов и инженерных систем размерные линии допускается ограничивать стрелками.
5.4.3. Отметки уровней (высоты, глубины) элементов конструкций, оборудования, трубопроводов, воздуховодов и др. от уровня отсчета (условной “нулевой” отметки) указывают в метрах без обозначения единицы длины с тремя десятичными знаками, отделенными от целого числа запятой, за исключением случаев, оговоренных в соответствующих стандартах СПДС.
Отметки уровней на фасадах, разрезах и сечениях помещают на выносных линиях (или на линиях контура) и обозначают знаком “¯”, выполненным сплошными тонкими линиями с длиной штрихов 2 — 4 мм под углом 45° к выносной линии или линии контура, в соответствии с рисунком 5; на планах — в прямоугольнике в соответствии с рисунком 6, за исключением случаев, оговоренных в соответствующих стандартах СПДС.
Рисунок 5 |
Рисунок 6 |
“Нулевую” отметку, принимаемую, как правило, для поверхности какого-либо элемента конструкций здания или сооружения, расположенного вблизи планировочной поверхности земли, указывают без знака; относительные отметки выше нулевой указывают со знаком “+”, ниже нулевой — со знаком “-“.
Примечание — В качестве нулевой отметки для зданий принимают, как правило, уровень чистого пола первого этажа.
5.4.4. На планах направление уклона плоскостей указывают стрелкой, над которой при необходимости проставляют числовое значение уклона в процентах в соответствии с рисунком 7а или в виде отношения единицы высоты плоскости к соответствующей горизонтальной проекции (например, 1:7).
Допускается числовое значение уклона указывать в промилле или в виде десятичной дроби с точностью до третьего знака.
На разрезах, сечениях и схемах перед размерным числом, определяющим числовое значение уклона, наносят знак “Ð”, острый угол которого должен быть направлен в сторону уклона (кроме крутизны откосов насыпей и выемок). Обозначение уклона наносят непосредственно над линией контура или на полке линии-выноски в соответствии с рисунком 7б.
Рисунок 75.4.5. Номера позиций или марки элементов наносят на полках линий-выносок, проводимых от изображений элементов конструкций зданий или сооружений, рядом с изображением — без линии-выноски или в пределах контуров изображенных элементов в соответствии с рисунком 8.
Рисунок 8Линию-выноску, как правило, заканчивают точкой. Если линия-выноска отводится от линии, обозначающей поверхность, то ее заканчивают стрелкой. При мелкомасштабном изображении линии-выноски заканчивают без стрелки и точки.
5.4.6. Выносные надписи к многослойным конструкциям выполняют в соответствии с рисунком 9.
Рисунок 9Примечание — Цифрами условно обозначена последовательность расположения слоев конструкций и надписей на полках линий-выносок.
5.4.7. Размер шрифта для обозначения координационных осей, позиций (марок), наименований и обозначений изображений должен быть в 1,5 — 2 раза больше размера цифр размерных чисел, применяемых в том же графическом документе.
5.5. Изображения (разрезы, сечения, виды, выносные элементы)
5.5.1. Изображения на чертежах выполняют в соответствии с ГОСТ 2.305 с учетом требований настоящего стандарта и других стандартов СПДС.
5.5.2. Разрезы здания или сооружения обозначают арабскими цифрами последовательно в пределах графического документа. Сечения обозначают аналогичным образом.
Примечание — В чертежах проектной и рабочей документации разрезом называют, как правило, вертикальный разрез здания или сооружения, т. е. разрез, выполненный секущей плоскостью, перпендикулярной к горизонтальной плоскости проекций.
Допускается самостоятельная нумерация для разрезов и сечений отдельных участков здания, сооружения или установок, все чертежи которых размещены на одном листе или группе листов и если на этих чертежах отсутствуют ссылки на разрезы и сечения, расположенные на других листах графического документа.
Допускается обозначать разрезы прописными буквами русского алфавита, а сечения — прописными или строчными буквами русского алфавита (за исключением букв, указанных в 5.3.2).
Положение секущей плоскости указывают на чертеже линией сечения (разомкнутой линией по ГОСТ 2.303). При сложном разрезе штрихи проводят также у мест пересечения секущих плоскостей между собой. На начальном и конечном штрихах следует ставить стрелки, указывающие направление взгляда; стрелки должны наноситься на расстоянии 2 — 3 мм от конца штриха (рисунок 10).
Направление взгляда для разреза по плану здания и сооружения принимают, как правило, снизу вверх и справа налево.
5.5.3. Если отдельные части вида (фасада), плана, разреза требуют более детального изображения, то дополнительно выполняют местные виды и выносные элементы — узлы и фрагменты.
5.5.4. На изображении (плане, фасаде или разрезе), откуда выносят узел, соответствующее место отмечают замкнутой сплошной тонкой линией (окружностью, овалом или прямоугольником со скругленными углами) с нанесением на полке линии-выноски обозначения узла арабской цифрой в соответствии с рисунками 11а, 11б или прописной буквой русского алфавита в соответствии с рисунком 11в.
При необходимости ссылки на узел, помещенный в другом графическом документе (например, основном комплекте рабочих чертежей), или на рабочие чертежи типового строительного узла указывают обозначение и номер листа соответствующего документа в соответствии с рисунком 11б или серию рабочих чертежей типовых узлов и номер выпуска в соответствии с рисунком 11в.
| Рисунок 10 | Рисунок 11 |
При необходимости ссылку на узел в сечении выполняют в соответствии с рисунком 12.
Над изображением узла указывают в кружке его обозначение в соответствии с рисунком 13а, если узел изображен на том же листе, откуда он вынесен, или 13б, если он вынесен на другом листе.
Узлу, являющемуся полным зеркальным отражением другого (основного) исполнения, присваивают то же обозначение, что и основному исполнению, с добавлением индекса “н”.
| Рисунок 12 |
Рисунок 13 |
5.5.5. Местные виды обозначают прописными буквами русского алфавита, которые наносят рядом со стрелкой, указывающей направление взгляда. Эти же обозначения наносят над изображениями видов.
5.5.6. Для каждого вида изображений (разрезов и сечений, узлов, фрагментов) применяют самостоятельный порядок нумерации или буквенных обозначений.
5.5.7. На изображении (плане, фасаде или разрезе), откуда выносят фрагмент, соответствующее место отмечают, как правило, фигурной скобкой в соответствии с рисунком 14.
Наименование и порядковый номер фрагмента наносят под фигурной скобкой или на полке линии-выноски, а также над соответствующим фрагментом.
Рисунок 145.5.8. Изображения до оси симметрии симметричных планов и фасадов зданий и сооружений, схем расположения элементов конструкций, планов расположения технологического, энергетического, санитарно-технического и другого оборудования не допускаются.
5.5.9. Если изображение разреза, сечения, узла, вида или фрагмента помещено на другом листе, то после обозначения изображения указывают в скобках номер этого листа в соответствии с рисунками 10, 11а, 12 и 14.
5.5.10. Изображения допускается поворачивать. При этом в наименованиях изображений на чертежах не приводят условное графическое обозначение “повернуто” по ГОСТ 2.305, если положение изображения определено однозначно, т. е. ориентировано координационными осями и/или высотными отметками.
5.5.11. Если изображение (например, план) не помещается на листе принятого формата, то его делят на несколько участков, размещая их на отдельных листах.
В этом случае на каждом листе, где показан участок изображения, приводят схему целого изображения с необходимыми координационными осями и условным обозначением (штриховкой) показанного на данном листе участка изображения в соответствии с рисунком 15.
Рисунок 15Примечание — Если чертежи участков изображения помещены в разных основных комплектах рабочих чертежей, то над номером листа указывают полное обозначение соответствующего основного комплекта.
5.5.12. Если планы этажей многоэтажного здания имеют небольшие отличия друг от друга, то полностью выполняют план одного из этажей, для других этажей выполняют только те части плана, которые необходимы для показа отличия от плана, изображенного полностью.
Под наименованием частично изображенного плана приводят запись: “Остальное см. план (наименование полностью изображенного плана)”.
5.5.13. В наименованиях планов здания или сооружения указывают слово “План” и отметку чистого пола или номер этажа, или обозначение соответствующей секущей плоскости (при выполнении двух и более планов на разных уровнях в пределах этажа).
Примеры
1 План на отм. 0,000
2 План 2 этажа
3 План 3-3
При выполнении части плана в наименовании указывают оси, ограничивающие эту часть плана.
Пример — План на отм. 0,000 между осями 21–30 и А-Д
Допускается в наименовании плана этажа указывать назначение помещений, расположенных на этаже.
5.5.14. В наименованиях разрезов здания (сооружения) указывают слово “Разрез” и обозначение соответствующей секущей плоскости по 5.5.2.
Пример — Разрез 1–1
Примечание — В наименованиях разрезов изделий слово “Разрез” не указывают.
Наименованиями сечений являются цифровые или буквенные обозначения секущих плоскостей.
Пример — 5–5, Б–Б, а-а
5.5.15. В наименованиях фасадов здания или сооружения указывают слово “Фасад” и обозначения крайних осей, между которыми расположен фасад.
Пример — Фасад 1–12, Фасад 1–1, Фасад А–Г
Допускается в наименовании фасада указывать его расположение, например “главный”, “дворовый” и т.п.
5.5.16. Наименования изображений на чертежах не подчеркивают.
www.spds.ru
Проект СПДС :: ГОСТ 21.1101-2013 «СПДС. Основные требования к проектной и рабочей документации» :: Приложение Г (обязательное)
ГОСТ 21.1101-2013 “СПДС. Основные требования к проектной и рабочей документации”
Приложение Г (обязательное)
Ведомости общих данных по рабочим чертежам
Форма 1 — Ведомость рабочих чертежей основного комплекта
— Ведомость спецификаций
Г.1 В ведомости рабочих чертежей основного комплекта указывают:
— в графе “Лист” – порядковый номер листа основного комплекта рабочих чертежей;
— в графе “Наименование” – наименование изображений, помещенных на листе, в соответствии с наименованиями, приведенными в основной надписи листа;
— в графе “Примечание” – дополнительные сведения, например об изменениях, вносимых в рабочие чертежи основного комплекта.
Г.2 В ведомости спецификаций указывают:
— в графе “Лист” – номер листа основного комплекта рабочих чертежей, на котором помещена спецификация;
— в графе “Наименование” – наименование спецификации в точном соответствии с ее наименованием, указанным на чертеже;
— в графе “Примечание” – дополнительные сведения, в том числе об изменениях, вносимых в спецификации.
Форма 2 — Ведомость основных комплектов рабочих чертежей
— Ведомость ссылочных и прилагаемых документов
— Ведомость документов основного комплекта рабочих чертежей
Г.3 В ведомости основных комплектов рабочих чертежей указывают:
— в графе “Обозначение” – обозначение основного комплекта рабочих чертежей и, при необходимости, наименование или различительный индекс организации, выпустившей документ;
— в графе “Наименование” – наименование основного комплекта рабочих чертежей;
— в графе “Примечание” – дополнительные сведения, в том числе об изменениях в составе основных комплектов рабочих чертежей.
Г.4 В ведомости ссылочных и прилагаемых документов указывают:
— в графе “Обозначение” -обозначение документа и, при необходимости, наименование или различительный индекс организации, выпустившей документ;
— в графе “Наименование” – наименование документа в точном соответствии с наименованием, указанным на титульном листе или в основной надписи;
— в графе “Примечание” -дополнительные сведения, в том числе о внесенных изменениях в записанные документы, входящие в состав рабочей документации. Для документов в электронной форме указывают, при необходимости, идентификатор файла (файлов).
Г.5 В ведомости документов основного комплекта рабочих чертежей указывают:
— в графе “Обозначение” – обозначение документа;
— в графе “Наименование” – наименование документа в соответствии с наименованием, указанным в основной надписи. Для графических документов, состоящих из нескольких листов, приводят также наименования изображений, помещенных на каждом листе, в соответствии с наименованиями, приведенными в основной надписи листа;
— в графе “Примечание” -дополнительные сведения, в том числе о внесенных изменениях в записанные документы, и, при необходимости, общее количество листов документа. Для документов в электронной форме указывают, при необходимости, идентификатор файла (файлов).
Г.6 Размеры граф ведомостей, при необходимости, могут быть изменены по усмотрению разработчика.
Г.7 Допускается при необходимости включать в ведомости дополнительные графы (колонки), например “Кол. листов” и т.п.
Г.8 При заполнении ведомостей автоматизированным способом горизонтальные линии, разграничивающие строки, допускается не проводить. При этом необходимо соблюдать интервал не менее одного разряда печати между текстами соседних строк.
www.spds.ru
| Номер раздела |
Наименование раздела проектной документации | Шифр раздела |
| 1 | Пояснительная записка | ПЗ |
| 2 | Схема планировочной организации земельного участка | ПЗУ |
| 3 | Архитектурные решения | АР |
| 4 | Конструктивные и объемно-планировочные решения | КР |
| 5 | Сведения об инженерном оборудовании, о сетях инженерно-технического обеспечения, перечень инженерно-технических мероприятий, содержание технологических решений | ИОС |
| 6 | Проект организации строительства | ПОС |
| 7 | Проект организации работ по сносу или демонтажу объектов капитального строительства | ПОД |
| 8 | Перечень мероприятий по охране окружающей среды | ООС |
| 9 | Мероприятия по обеспечению пожарной безопасности | ПБ |
| 10 | Мероприятия по обеспечению доступа инвалидов | ОДИ |
| 101 | Требования к обеспечению безопасной эксплуатации объекта капитального строительства | ТБЭ |
| 11 | Смета на строительство объектов капитального строительства | СМ |
| 111 | Мероприятия по обеспечению соблюдения требований энергетической эффективности и требований оснащенности зданий, строений и сооружений приборами учета используемых энергетических ресурсов | ЭЭ |
| 12 | Иная документация в случаях, предусмотренных федеральными законами, в том числе: | |
| Перечень мероприятий по гражданской обороне, мероприятий по предупреждению чрезвычайных ситуации природного и техногенного характера, мероприятии по противодействию терроризму | ГОЧС | |
| Декларация промышленной безопасности опасных производственных объектов | ДПБ | |
| Декларация безопасности гидротехнических сооружений | ДБГ | |
| Иная документация, установленная законодательными актами Российской Федерации | – | |
| Примечание — Допускается номера разделов 101 и 111 приводить в виде 10(1), 11(1) или 10-1, 11-1. | ||
| Номер раздела |
Наименование раздела проектной документации | Шифр раздела |
| 1 | Пояснительная записка | ПЗ |
| 2 | Проект полосы отвода | ППО |
| 3 | Технологические и конструктивные решения линейного объекта. Искусственные сооружения | ТКР |
| 4 | Здания, строения и сооружения, входящие в инфраструктуру линейного объекта* | ИЛО |
| 5 | Проект организации строительства | ПОС |
| 6 | Проект организации работ по сносу (демонтажу) линейного объекта | ПОД |
| 7 | Мероприятия по охране окружающей среды | ООС |
| 8 | Мероприятия по обеспечению пожарной безопасности | ПБ |
| 9 | Смета на строительство | СМ |
| 10 | Иная документация в случаях, предусмотренных федеральными законами, в том числе: | |
| Перечень мероприятий по гражданской обороне, мероприятий по предупреждению чрезвычайных ситуаций природного и техногенного характера, мероприятий по противодействию терроризму | ГОЧС | |
| Декларация промышленной безопасности опасных производственных объектов | ДПБ | |
| Декларация безопасности гидротехнических сооружений | ДБГ | |
www.spds.ru
| Обозначение и наименование стандарта | Условия применения стандарта |
| ГОСТ 2.004-88 Единая система конструкторской документации. Общие требования к выполнению конструкторских и технологических документов на печатающих и графических устройствах вывода ЭВМ | – |
| ГОСТ 2.051-2006 Единая система конструкторской документации. Электронные документы. Общие положения | – |
| ГОСТ 2.052-2006 Единая система конструкторской документации. Электронная модель изделия. Общие положения | – |
| ГОСТ 2.101-68 Единая система конструкторской документации. Виды изделий | – |
| ГОСТ 2.102-68 Единая система конструкторской документации. Виды и комплектность конструкторских документов | С учетом положений ГОСТ 21.501, относящихся к выполнению чертежей строительных изделий |
| ГОСТ 2.105-95 Единая система конструкторской документации. Общие требования к текстовым документам | С учетом положений разделов 4, 5 и 8 настоящего стандарта |
| ГОСТ 2.109-73 Единая система конструкторской документации. Основные требования к чертежам | С учетом положений ГОСТ 21.501. Ссылки на ГОСТ 2.106, а также 1.1.11, 1.1.12, 1.3 ГОСТ 2.109 не учитывают |
| ГОСТ 2.113-75 Единая система конструкторской документации. Групповые и базовые конструкторские документы | С учетом положений ГОСТ 21.501 |
| ГОСТ 2.114-95 Единая система конструкторской документации. Технические условия | С учетом положений 5.2.1, 5.2.2, 5.2.5 — 5.2.7 и раздела 8 настоящего стандарта. Положения 3.7.1 и 3.8 ГОСТ 2.114 не учитывают |
| ГОСТ 2.301-68 Единая система конструкторской документации. Форматы | С учетом требований соответствующих стандартов СПДС |
| ГОСТ 2.302-68 Единая система конструкторской документации. Масштабы | С учетом положений 5.1.6 настоящего стандарта |
| ГОСТ 2.303-68 Единая система конструкторской документации. Линии | С учетом положений 5.1.3 настоящего стандарта |
| ГОСТ 2.304-81 Единая система конструкторской документации. Шрифты чертежные | С учетом положений 5.1.5 настоящего стандарта |
| ГОСТ 2.305-2008 Единая система конструкторской документации. Изображения — виды, разрезы, сечения | С учетом положений 5.5 настоящего стандарта |
| ГОСТ 2.306-68 Единая система конструкторской документации. Обозначения графические материалов и правила их нанесения на чертежах | С учетом положений ГОСТ 21.302, таблицы 4 и 5 |
| ГОСТ 2.307-2011 Единая система конструкторской документации. Нанесение размеров и предельных отклонений | С учетом положений 5.4.1 — 5.4.4 настоящего стандарта |
| ГОСТ 2.308-2011 Единая система конструкторской документации. Указание допусков формы и расположения поверхностей | С учетом положений ГОСТ 21.113 |
| ГОСТ 2.309-73 Единая система конструкторской документации. Обозначение шероховатости поверхностей | – |
| ГОСТ 2.310-68 Единая система конструкторской документации. Нанесение на чертежах обозначений покрытий, термической и других видов обработки | – |
| ГОСТ 2.311-68 Единая система конструкторской документации. Изображение резьбы | – |
| ГОСТ 2.312-72 Единая система конструкторской документации. Условные изображения и обозначения швов сварных соединений | – |
| ГОСТ 2.313-82 Единая система конструкторской документации. Условные изображения и обозначения неразъемных соединений | – |
| ГОСТ 2.314-68 Единая система конструкторской документации. Указания на чертежах о маркировке и клеймении изделий | – |
| ГОСТ 2.315-68 Единая система конструкторской документации. Изображения упрощенные и условные крепежных деталей | – |
| ГОСТ 2.316-2008 Единая система конструкторской документации. Правила нанесения надписей, технических требований и таблиц на графических документах. Общие положения | С учетом положений 5.4.5 — 5.4.7 настоящего стандарта |
| ГОСТ 2.317-2011 ЕСКД. Аксонометрические проекции | – |
| ГОСТ 2.501-88 ЕСКД. Правила учета и хранения | В части формы инвентарной книги, абонентской карточки и указаний по складыванию чертежей |
| ГОСТ 2.511-2011 Единая система конструкторской документации. Правила передачи электронных конструкторских документов. Общие положения | – |
| ГОСТ 2.512-2011 Единая система конструкторской документации. Правила выполнения пакета данных для передачи электронных конструкторских документов. Общие положения | – |
www.spds.ru
| Наименование основного комплекта рабочих чертежей | Марка | Примечание |
| Генеральный план и сооружения транспорта | ГТ | При объединении рабочих чертежей генерального плана и сооружений транспорта |
| Генеральный план | ГП | – |
| Автомобильные дороги | АД | – |
| Железнодорожные пути | ПЖ | – |
| Сооружения транспорта | ТР | При объединении рабочих чертежей автомобильных, железных и других дорог |
| Архитектурно-строительные решения | АС | При объединении рабочих чертежей архитектурных и конструктивных решений (кроме КМ) |
| Архитектурные решения | АР | – |
| Интерьеры | АИ | Рабочие чертежи могут быть объединены с основным комплектом марки АР или АС |
| Конструкции железобетонные | КЖ | – |
| Конструкции металлические | КМ | – |
| Конструкции металлические деталировочные | КМД | – |
| Конструкции деревянные | КД | – |
| Гидротехнические решения | ГР | – |
| Антикоррозионная защита конструкций зданий, сооружений | A3 | – |
| Электроснабжение | ЭС | – |
| Наружное электроосвещение | ЭН | – |
| Силовое электрооборудование | ЭМ | – |
| Электрическое освещение (внутреннее) | ЭО | – |
| Наружные сети водоснабжения | НВ | – |
| Наружные сети канализации | НК | – |
| Наружные сети водоснабжения и канализации | НВК | При объединении рабочих чертежей наружных сетей водоснабжения и канализации |
| Внутренние системы водоснабжения и канализации | ВК | – |
| Пожаротушение | ПТ | – |
| Отопление, вентиляция и кондиционирование | ОВ | – |
| Воздухоснабжение | ВС | – |
| Пылеудаление | ПУ | – |
| Холодоснабжение | ХС | – |
| Тепломеханические решения | ТМ | Котельных, ТЭЦ и т.п. |
| Тепломеханические решения тепловых сетей | ТС | – |
| Проводные средства связи* | Наименования основных комплектов и обозначения марок принимают по приложению, А ГОСТ Р 21.1703 | |
| Радиосвязь, радиовещание и телевидение | РТ | – |
| Пожарная сигнализация | ПС | – |
| Охранная и охранно-пожарная сигнализация | ОС | – |
| Наружные газопроводы | ГСН | – |
| Газоснабжение (внутренние устройства) | ГСВ | – |
| Технология производства | ТХ | – |
| Технологические коммуникации | ТК | При объединении рабочих чертежей всех технологических коммуникаций |
| Антикоррозионная защита технологических аппаратов, газоходов и трубопроводов | АЗО | – |
| Тепловая изоляция оборудования и трубопроводов | ТИ | – |
| Автоматизация комплексная | АК | При объединении рабочих чертежей автоматизации различных технологических процессов и инженерных систем |
| Автоматизация + | Наименования основных комплектов и обозначения марок принимают по приложению, А ГОСТ 21.408 | |
| Гидромелиоративные линейные сооружения* | – | Наименования основных комплектов и обозначения марок принимают по приложению, А ГОСТ 21.709 |
www.spds.ru
8. Правила оформления сброшюрованной документации
ГОСТ 21.1101-2013 “СПДС. Основные требования к проектной и рабочей документации”
8. Правила оформления сброшюрованной документации
8.1. Копии текстовых и графических материалов проектной документации и отчетной технической документации по инженерным изысканиям брошюруют в тома, сложенными на формат А4 ГОСТ 2.301.
Примечание — Под брошюровкой понимается размещение материалов проектной документации на бумажном носителе в переплетах или в твердых папках с легкоразъемными креплениями (замками).
8.2. Копии документов рабочей документации комплектуют в папки полистно, сложенными на формат А4, как правило, отдельно по основным комплектам рабочих чертежей.
Допускается брошюровать копии рабочих документов в тома в соответствии с 8.1 или в альбомы, сложенными на формат A3.
Количество листов, включаемых в папку или альбом, должно соответствовать 4.1.5.
8.3. Каждый документ, том или альбом, предназначенный для брошюровки, а также папку со сложенными в нее документами оформляют обложкой по форме 12 (приложение Н). Обложку не нумеруют и не включают в общее количество листов.
8.4. Первым листом сброшюрованного документа, а также тома, состоящего из нескольких документов, альбома или папки с рабочей документацией, является титульный лист.
Титульный лист выполняют по форме 13 (приложение П). Примеры выполнения титульных листов приведены на рисунках Р.1 и Р.2 (приложение Р).
В томе проектной документации, состоящем из нескольких самостоятельных документов, включая текстовую часть, титульный лист к текстовой части, как правило, не выполняют.
8.5. Все листы сброшюрованного тома (альбома) рекомендуется нумеровать сквозной нумерацией листов, начиная с титульного листа. При этом титульный лист не нумеруют. Номер листа указывают в правом верхнем углу рабочего поля листа (см. приложение И).
Кроме того, текстовые и графические документы, включенные в том (альбом) и имеющие самостоятельное обозначение, должны иметь порядковую нумерацию листов в пределах документа с одним обозначением в основной надписи или в колонтитуле (в соответствии с 4.1.8).
8.6. При комплектовании нескольких документов в виде тома, альбома, а также в папку после титульного листа приводят содержание тома (альбома, папки), которое является перечнем документов, входящих в том (альбом, папку). Содержание выполняют по форме 2 (приложение Г) на листах формата А4.
Документы в содержании записывают в последовательности их комплектования в том, альбом или папку. Графические документы проектной и отчетной технической документации по инженерным изысканиям записывают полистно. Обложку и титульный лист в содержание не записывают.
В графах содержания указывают:
— в графе “Обозначение” – обозначение документа;
— в графе “Наименование” – наименование документа в полном соответствии с наименованием, указанным в основной надписи или на титульном листе;
— в графе “Примечание” – сведения об изменениях, вносимых в записанные документы, а также номер листа тома по сквозной нумерации листов тома в соответствии с 8.5, с которого начинается документ.
Если сквозную нумерацию не выполняют, то в графе “Примечание” приводят общее количество листов каждого документа. В конце содержания приводят общее количество листов, включенных в том (альбом, папку).
Первый лист содержания тома (альбома, папки) оформляют основной надписью по форме 5 (приложение Ж), последующие — по форме 6 (приложение Ж). Содержанию присваивают обозначение, состоящее из обозначения тома (альбома, папки) и через дефис шифра “С”.
Пример — 2345-ПЗУ2-С; 2345-11-КЖ.И-С; 2345-11-ОВ.ОЛ-С; 2345-11-ТХ.Н-С
В графе 5 основной надписи указывают “Содержание тома” или, соответственно, “Содержание альбома” и “Содержание папки” и далее — номер соответствующего тома, альбома или папки (при наличии).
8.7. Титульные листы томов проектной документации оформляют подписями:
— руководителя или главного инженера организации;
— лица, ответственного за подготовку проектной документации, например главного инженера (архитектора) проекта.
Титульные листы рабочих документов оформляют подписью лица, ответственного за подготовку рабочей документации, — главного инженера (архитектора) проекта.
Титульный лист технического отчета по результатам инженерных изысканий оформляют подписью руководителя организации или его заместителя и, при необходимости, других должностных лиц.
Титульные листы копий документации, передаваемой заказчику, заверяют оттиском печати организации, подготовившей эту документацию.
8.8. Состав проектной документации, а также состав отчетной технической документации по результатам инженерных изысканий приводят в ведомости, выполняемой по форме 14 (приложение С) на листах формата А4.
В ведомости приводят последовательный перечень томов проектной или отчетной технической документации по инженерным изысканиям.
Первый лист ведомости оформляют основной надписью по форме 5 (приложение Ж), последующие — по форме 6 (приложение Ж).
Составу проектной документации присваивают обозначение, состоящее из базового обозначения проектной документации и через дефис шифра “СП”.
Пример — 2345-СП
При брошюровании ведомости в отдельный том ее оформляют обложкой и титульным листом в соответствии с 8.3 и 8.4. Номер тома на обложке и титульном листе не указывают.
Составу отчетной технической документации по результатам инженерных изысканий присваивают обозначение, состоящее из базового обозначения документации и через дефис шифра “СД”.
Пример — 2344-СД
www.spds.ru
3. Термины, определения и сокращения
ГОСТ 21.1101-2013 “СПДС. Основные требования к проектной и рабочей документации”
3. Термины, определения и сокращения
3.1. Термины и определения
В настоящем стандарте применены термины по ГОСТ Р 21.1001, ГОСТ Р 21.1002, ГОСТ Р 21.1003, а также следующие термины с соответствующими определениями:
3.1.1. основная надпись: Совокупность сведений о проектном документе, содержащихся в графах таблицы установленной формы, помещаемой на листах проектной и рабочей документации.
3.1.2. основной комплект рабочих чертежей: Графический документ, содержащий необходимую и достаточную информацию в виде чертежей и схем, предназначенный для производства строительных и монтажных работ определенного вида (марки).
3.1.3. полный комплект рабочей документации: Совокупность основных комплектов рабочих чертежей, необходимых для строительства здания или сооружения, дополненных прилагаемыми и ссылочными документами.
3.1.4. марка: Буквенный или буквенно-цифровой индекс, входящий в обозначение рабочей документации и определяющий ее отношение к определенному виду строительно-монтажных работ, или обозначающий основные отличительные особенности строительных конструкций и их элементов.
3.1.5. спецификация оборудования, изделий и материалов: Текстовый проектный документ, определяющий состав оборудования, изделий и материалов, предназначенный для комплектования, подготовки и осуществления строительства.
[ГОСТ 21.110-95, раздел 3]
3.1.6. эскизный чертеж общего вида нетипового изделия: Документ, определяющий исходную конструкцию нетипового изделия, содержащий упрощенное изображение, основные параметры и технические требования к изделию в объеме исходных данных (задания), необходимых для разработки конструкторской документации.
[ГОСТ 21.114-95, статья 3.1]
3.1.7. нетиповое изделие: Изделие (конструкция, устройство, монтажный блок) технологических систем, внутренних и наружных систем и сетей инженерно-технического обеспечения зданий и сооружений, впервые разработанное и изготовленное, как правило, на месте монтажа (в заготовительной мастерской монтажной организации).
3.1.8. строительная конструкция: Часть здания или сооружения, выполняющая определенные несущие, ограждающие и (или) эстетические функции.
[ГОСТ 21.501-2011, статья 3.3]
3.1.9. строительное изделие: Изделие, предназначенное для применения в качестве элемента зданий, сооружений и строительных конструкций.
[ГОСТ 21.501-2011,статья 3.4]
3.1.10. элемент строительной конструкции: Составная часть сборной или монолитной конструкции.
[ГОСТ 21.501-2011, статья 3.5]
3.1.11. строительный материал: Материал, в том числе штучный предназначенный для изготовления строительных изделий и возведения строительных конструкций зданий и сооружений.
[ГОСТ 21.501-2011 статья 3.6]
3.1.12. оборудование: Технологическое оборудование (машины, аппараты, механизмы, грузоподъемные и другие технические средства, обеспечивающие соответствующий технологический процесс), а также инженерное оборудование зданий и сооружений, обеспечивающее безопасные и благоприятные условия для жизнедеятельности людей.
3.1.13. координационная ось: Одна из координационных линий, определяющих членение здания или сооружения на модульные шаги и высоты этажей.
[ГОСТ 28984-2011, статья 3.12]
3.1.14. план: Вид сверху или горизонтальный разрез здания или сооружения.
3.1.15. фасад: Ортогональная проекция наружной стены здания или сооружения на вертикальную плоскость.
Примечание — Различают фасады главный, боковой, дворовый и др.
3.1.16. реквизит документа: Элемент оформления документа, содержащий о нем сведения.
Примечание — Как правило, реквизит состоит из атрибутов (составной реквизит).
[ГОСТ 2.104-2006, статья 3.1.1]
3.1.17. атрибут документа: Идентифицированная (именованная) характеристика части реквизита.
[ГОСТ 2.104-2006, статья 3.1.2]
3.1.18. Оформление документа:
Проставление необходимых реквизитов и атрибутов, установленных правилами документирования.
[ГОСТ 2.104-2006,статья 3.1.3]
3.1.19. подпись: Реквизит документа, представляющий собой собственноручную подпись полномочного должностного лица.
Примечание — для электронных документов используется аналог собственноручной подписи — электронная цифровая подпись.
[ГОСТ 2.104-2006, статья 3.1.4]
3.1.20. обозначение: Реквизит документа, представляющий собой его идентификационный (различительный) индекс.
Примечание — Каждому документу присваивают обозначение, которое записывают в установленных местах (в основных надписях, на титульных листах и т.п.).
3.2. Сокращения
В настоящем стандарте использованы следующие сокращения:
ДЭ — документ электронный;
ЕСКД — Единая система конструкторской документации;
САПР — система (системы) автоматизированного проектирования;
СПДС — Система проектной документации для строительства;
СЭД — система (системы) электронного документооборота.
www.spds.ru

Рисунок 5
Рисунок 6
Рисунок 13