Котлы Viessmann Vitoplex 100 – высокие технологии отопления
Специалисты компании Viessmann как никто другой знают, насколько важен правильный выбор газового котла в процессе обустройства своей квартиры или дома. И именно поэтому инженеры, которые трудятся в этой компании, стремятся к тому, чтобы создать идеальный микроклимат в любом помещении с помощью отопительной техники высшего класса.
На сегодняшний день производитель предлагает широкую линейку агрегатов, что открывает для потребителей массу возможностей для обустройства своего жилища. В настоящий момент компания Viessmann является одним из ведущих производителей оборудования для теплоснабжения в мире. Созданная чуть менее ста лет назад, эта компания развилась за это время до невероятных масштабов. Ей принадлежит 27 заводов в 11 странах, на которых работает более 11 тысяч сотрудников. При этом оборот компании превышает 2 миллиарда евро, что говорит о серьезных масштабах бизнеса.
Несмотря на то, что компания предлагает очень широкий выбор отопительных агрегатов, и все они достаточно хороши, некоторые из моделей заслуживают отдельного внимания. Таковой является котел Vitoplex 100 – один из лидеров продаж, который совершенно заслуженно пользуется признанием потребителей.
Обсудим подробности и детали
Это – полноценный отопительный агрегат высокого качества, которое свойственно всей продукции немецкого бренда. Этот котел порадует покупателя замечательными эксплуатационными характеристиками и оптимальным соотношением цены и качества. Высокий КПД, который достигает 92%, делает этот аппарат одним из наиболее производительных в своей ценовой категории. При этом не только высокие технические стандарты, соблюдаемые инженерами Viessmann, делают эту технику особенной.

Котлы Viessmann Vitoplex 100 очень компакты. Это качество высоко ценится как европейскими, так и российскими покупателями, ведь экономия жилого пространства актуальна практически для каждой семьи. Кроме того, скромные габариты существенно облегчают перевозку конструкции. Установить аппарат в санузле или любой другой комнате не составит труда.
Котел Viessmann Vitoplex 100 порадует значительным водонаполнением котлового блока. Из-за этого горелка работает заметно дольше. Сокращение количества запусков горелки позитивно отражается на экологических параметрах. К слову, немецкая компания Viessmann достаточно активно внедряет «зеленые технологии» в выпускаемую отопительную технику.

Значительный объем бака, который предусмотрен конструкцией, способствует передаче тепла теплоносителю посредством естественной циркуляции под воздействием гравитации. По этой причине необходимость в насосе для принудительной циркуляции воды полностью отпадает.
Температура подачи в магистрали достигает 110 градусов Цельсия, что говорит о высокой производительности котлов Viessmann. Также конструкция включает термостатический контроллер Vitotronic 100.

Особенностью данного агрегата можно считать то, что в нем полностью отсутствует минимальный объем выдачи теплоносителя в нагревающем контуре. При этом техника показывает высокую эффективность в любом режиме эксплуатации. А ее надежность и долговечность не подвергается сомнению, ведь это Viessmann.
Котел Viessmann Vitoplex 100 имеет массу преимуществ. Каждое из них мы рассмотрим ниже. Среди них:
- Экономичность агрегата, который потребляет минимальное количество топлива в режиме тепловой генерации с изменяющейся температурой теплоносителя. Сокращение расходов на отопление при использовании техники Viessmann заметит каждый хозяин.
- Возможность агрегации с утилизатором газов Vitotrans 300. Данная конструкция изготавливается из первоклассной стали и призвана существенно повысить КПД всей системы.
- Незначительное выделение оксидов азота в процессе работы благодаря особой 3-ходовой конструкции агрегата с малой тепловой напряженностью топки.
- Отсутствие лимитов по минимальному расходу горячей воды, что было достигнуто инженерами с помощью значительных проходов между жаровыми трубами и немалого водонаполнения котлового блока.
- Быстрый монтаж котла Vitoplex 100 благодаря использованию особых фиксаторов fastFix. Комплектация данными быстроразъемными соединениями сокращает время на установку оборудования.
- Наличие электронной системы программного управления Vitotronic, которая повышает надежность работы всей системы и оптимизирует расход топлива.
- Наличие телекоммуникационной шины LON, которая дает возможность соединить котел с интегрированной системой диспетчерского управления. Данная особенность модели котла Vitoplex 100 используется при агрегации нескольких котлов в единую систему отопления. Производитель предусмотрел возможность дистанционного управления работой каждого агрегата. Это стало возможно, благодаря системе TeleControl.
Выводы
Котел Vitoplex 100 PV1– это современное оборудование, в котором нашли свое воплощение передовые технологии. У компании Viessmann не так много конкурентов, чья продукция смогла бы сравниться с данной моделью по технологическому совершенству. А если учесть то, что фирменной особенностью агрегатов немецкой марки является надежность, то и вовсе отпадают все сомнения в том, что в мире существует достойный аналог котла Viessmann Vitoplex 100 PV1.
Советуем также почитать:
prostokotel.ru
Комбинированный котел Viessmann Vitoplex 100
__________________________________________________________________________
Комбинированный котел Viessmann Vitoplex 100
Комбинированный котел Viessmann Vitoplex 100
LS низкого давления производительностью 0,26-2,2 т/ч и номинальной
тепловой мощностью 170-1450 кВт предназначен для отопления помещений.

Рис.1. Компоненты котлов Висман Витоплекс 100
AGA – Дымоход, BE1 – Ниппель R 3/4 для продувки и удаления воздуха, BE2 – Муфта R 3/4 для продувки и удаления воздуха, BT – Муфта R 1/2 для регулятора температуры (поддержание готовности), D – Паровой патрубок, DR – 2 муфты R 1/2 для регулятора давления, DW – Муфта R 1/2 для реле контроля давления, Е – Патрубок опорожнения, ESL – Патрубок для линии обессоливания PN 16 DN 20, KAB – Проходная площадка по верхней части котла, KTÜ – Дверь котла, LFE – Патрубок для электрода электропроводимости PN 16 DN 20, MA – Муфта R 1/2 для манометра, NW – Минимальный уровень воды, R1 – Отверстие для чистки, R2 – Муфта для чистки, SA – Патрубок аварийной линии (предохранительный клапан), SCH – Смотровое отверстие, SW – Патрубок питательной воды, WB/WR – Патрубок PN 16 DN 100 для ограничителя/регулятора уровня воды, WSA – Патрубок PN 16 DN 20 для указателя уровня воды
Установка и монтаж комбинированных котлов Viessmann Vitoplex 100
Для обеспечения простого монтажа и техобслуживания следует придерживаться указанных размеров; при ограниченном пространстве для монтажа необходимо выдержать минимальные расстояния.
В состоянии при поставке дверь агрегата смонтирована с поворотом влево. Шарнирные болты можно переставить так, чтобы дверь при открытии поворачивалась вправо.
Помещения для установки котлов Витоплекс
Помещения для установки котельных агрегатов должны соответствовать информационному листку DDA “Монтаж и эксплуатация паровых установок с с большим водяным пространством, имеющими маркировку СЕ”.
Комбинированные котлы Viessmann Vitoplex 100 запрещается устанавливать:
– в жилых помещениях, а также под, над и рядом с жилыми помещениями,
– в бытовых и рабочих помещениях, а также под и над этими помещениями; к таким помещениям не относятся помещения без постоянного рабочего места, в которые редко заходят люди, а также диспетчерские и помещения для соответствующего оборудования, обслуживаемого персоналом, ответственным за обслуживание аппарата, или диспетчерами.
В отличие от этого котлы Viessmann Vitoplex 100 могут быть установлены:
– в рабочих помещениях, а также под и над ними,
– под, над и рядом с жилыми помещениями,
– под и над бытовыми помещениями в случае, если произведение значения водонаполнения агрегата в литрах и допустимого рабочего давления в бар не превышает 10000. Это относится также и к тем случаям, когда указанное произведение не превышает 20000.
– допустимое рабочее давление составляет не более 32 бар,
– водонаполнение аппарата не превышает 10000 л,
– допустимая паропроизводительность не превышает 2 т/ч и
– установка оборудована и проверена согласно TRD 604.
Условия монтажа котлов Viessmann Vitoplex 100
Чтобы избежать неисправностей и повреждений установки, должны быть соблюдены следующие требования:
– В помещениях, в которых возможно загрязнение воздуха галогенуглеводородами (которые, например, содержатся в аэрозолях, красках, растворителях и моющих средствах), котел можно устанавливать только при условии, что предприняты достаточные меры для поступления незагрязненного воздуха для сжигания топлива.
– Не допускать сильного запыления.
– Не допускать высокой влажности воздуха.
– Обеспечить защиту от замерзания и надлежащую вентиляцию.
– Монтаж выполнять на ровной поверхности.

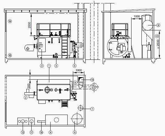
Рис.2. Помещение для установки котла Висман Витоплекс
A – Высота подпора (в зависимости от температуры питательной воды, типа питательного насоса, давления нагрузки в баке питательной воды), 1 – Паровой котел, 2 – Горелка, 3 – Шкаф управления, 4 – Удаление шлама, 5 – Питательный насос (при установке учесть необходимую высоту подпора), 6 – Дымоход, 7 – Шламосборник, 8 – Распылительный циркуляционный деаэратор (в качестве альтернативы 9), 9 – Бак питательной воды с деаэратором, 10 – Парораспределитель, 11 – Дозатор, 12 – Водоподготовка (химическая), 13 – Система удаления продуктов сгорания, 14 – Вытяжное отверстие, 15 – Отверстие приточного воздуха
Система удаления продуктов сгорания
Параметры агрегата и системы удаления продуктов сгорания должны быть согласованы между собой.
Согласно EN 13384 и DIN 18160 продукты сгорания должны отводиться в атмосферу через коррозионностойкий дымоход.
Дымовые трубы должны быть газоплотными и изготовлены из металла или негорючих материалов. Трубы должны иметь тепловую изоляцию для предотвращения образования конденсата.
Соединительный элемент между патрубком уходящих газов котла и дымовой трубой должен быть защищен теплоизоляцией. Мы рекомендуем обратиться за консультацией к ответственному мастеру по надзору за дымовыми трубами и дымоходами.
Монтаж горелки
Котел Vitoplex 100 LS, паропроизводительность 0,26-0,7 т/ч
Окружность центров отверстий для крепления горелки, отверстия для крепления горелки и отверстие для ввода трубы горелки соответствуют требованиям EN 303 1. Горелка может быть установлена непосредственно на поворотную дверь аппарата.
Если монтажные размеры горелки отличаются от размеров, указанных в стандарте EN 303 1, то должна быть установлена плита горелки, входящая в комплект поставки. Труба горелки должна выступать из теплоизоляции двери агрегата.
Котел Vitoplex 100 LS, паропроизводительность 0,9-2,2 т/ч
На поворотной двери аппарата необходимо смонтировать плиту горелки, входящую в комплект поставки.
Горелка должна быть смонтирована на плите горелки, ее монтаж без плиты горелки непосредственно на двери невозможен.
Во входящей в комплект поставки плите горелки заказчик должен просверлить отверстия в соответствии с размерами горелки. Труба горелки должна выступать из теплоизоляции двери котла.
Выбор соответствующей горелки
Горелка должна соответствовать номинальной тепловой мощности и аэродинамическому сопротивлению уходящих газов котла. Материал пламенной головы горелки должен выдерживать рабочие температуры не менее 500 C.
Вентиляторная горелка для жидкого топлива – Горелка должна пройти испытания и иметь маркировку согласно EN 267, а также отвечать требованиям TRD 411.
Вентиляторная горелка для газообразного топлива – Горелка должна пройти испытания согласно EN 676 и иметь маркировку СЕ согласно Директиве 90/396/ЕЭС.
Настройка горелки – Отрегулировать расход жидкого или газообразного топлива горелки в соответствии с указанной номинальной тепловой мощностью агрегата.

Рис.3. Основное оборудование котлов Висман Витоплекс 100 с давлением срабатывания предохранительного устройства до 0,5 бар(TRD 701)
A – Шкаф управления Vitocontrol со схемой блокирования, B – Регулятор
давления, C – Выпускная линия в атмосферу, D – Паропровод, E – Манометр
с
контрольным клапаном, F – Реле давления, G – Предохранительный клапан, H
– Парозапорный клапан, K – Электрод для регулирования и ограничения
уровня воды, L – Удаление воздуха, M – Терморегулятор (поддержание
готовности), N – Указатель уровня воды, O – Автоматическое горелочное
устройство в соответствии с нормами DIN и требованиями TRD, P – Паровой
котел фирмы nViessmann. Давление пара макс. 1,0 бар, R – Вентиль для
сброса шлама, S – Регулировочная муфта (дроссель), T – Обратный клапан
(питательная вода), U – Запорный клапан (питательная вода), V –
Питательный насос, W – Бак питательной воды, X – Питательная вода в
соответствии с требованиями, NW – Минимальный уровень воды
Принадлежности комбинированного котла Viessmann Vitoplex 100
Устройства безопасности:
– Предохранительный клапан.
– Уровневый электрод.
– Регулятор давления.
– Ограничитель давления.
– Манометр.
– Указатель уровня воды.
– Ограничитель уровня воды.
– Терморегулятор (поддержание готовности).
Прочие комплектующие:
– Звукопоглощающие подкладки котла.
– Парозапорный клапан.
– Клапан питательной воды.
– Конденсатное хозяйство.
– Обратный клапан питательной воды.
– Циркуляционный насос.
– Автоматический удалитель воздуха.
– Быстродействующий клапан для сброса шлама.
– Обессоливающее устройство с вентилем обессоливания.
– Запорная заслонка.
– Контрфланцы с винтами и уплотнениями.
– Химические и термические установки.
– Горелка для жидкого и газообразного топлива (данные о типах предоставляются по запросу).
– Шкафы управления Vitocontrol котла для настенного монтажа или для
установки на полу.
__________________________________________________________________________
__________________________________________________________________________
__________________________________________________________________________ _________________________________________________________________________________________________________________________________________________________
_______________________________________________________________________________
__________________________________________________________________________
ЭКСПЛУАТАЦИЯ И РЕМОНТ КОТЛОВПротерм Пантера
Протерм Скат
Протерм Медведь
Протерм Гепард
Эван
Аристон Эгис
Теплодар Купер
Атем Житомир
Нева Люкс
Ардерия
Нова
Термона
Иммергаз
Электролюкс
Конорд
Лемакс
Галан
Мора
Атон
_______________________________________________________________________________
Модели котлов Советы по ремонту котлов Коды ошибок Сервисные инструкции_______________________________________________________________________________
Монтаж и эксплуатация газовых котлов Бош 6000
Управление и обслуживание котлами Vaillant Turbotec / Atmotec
Обзор газовых котлов Житомир-3 Атем
Монтаж системы отопления частного дома
Котлы Данко, Росс и Dani – Ответы специалистов на вопросы пользователей
Рекомендации по монтажу настенных газовых котлов Навьен
Обзор твердотопливного котла Купер ОК-15 Теплодар
Неисправности и ошибки котлов Ферроли
Сборочные элементы, монтаж и подключение электрокотла Скат Protherm
Обзор отопительных котлов Дон КСТ-16
Ремонт и сервис котлов Вайлант – ответы экспертов
Обзор газового котла КСГ Очаг
Обзор отопительного котла Купер ОК-20 Теплодар
Комплектация и компоненты электрического котла Протерм Скат
Подключение и ввод в работу котла Будерус Логомакс U072
Ответы специалистов по неисправностям котлов Китурами
Советы мастеров по обслуживанию котлов Навьен
Обслуживание компонентов газового котла Navien Deluxe
Подключение котла Аристон Egis Plus 24 ff к рабочим системам
stzm.ru
Обзор комбинированного котла Viessmann Vitoplex 100
___________________________________________________________________________
Комбинированный котел Viessmann Vitoplex 100 LS низкого давления производительностью 0,26-2,2 т/ч и номинальной тепловой мощностью 170-1450 кВт предназначен для отопления помещений.

Рис.1. Компоненты котлов Висман Витоплекс 100
AGA – Дымоход, BE1 – Ниппель R 3/4 для продувки и удаления воздуха, BE2 – Муфта R 3/4 для продувки и удаления воздуха, BT – Муфта R 1/2 для регулятора температуры (поддержание готовности), D – Паровой патрубок, DR – 2 муфты R 1/2 для регулятора давления, DW – Муфта R 1/2 для реле контроля давления, Е – Патрубок опорожнения, ESL – Патрубок для линии обессоливания PN 16 DN 20, KAB – Проходная площадка по верхней части котла, KTÜ – Дверь котла, LFE – Патрубок для электрода электропроводимости PN 16 DN 20, MA – Муфта R 1/2 для манометра, NW – Минимальный уровень воды, R1 – Отверстие для чистки, R2 – Муфта для чистки, SA – Патрубок аварийной линии (предохранительный клапан), SCH – Смотровое отверстие, SW – Патрубок питательной воды, WB/WR – Патрубок PN 16 DN 100 для ограничителя/регулятора уровня воды, WSA – Патрубок PN 16 DN 20 для указателя уровня воды
Установка и монтаж комбинированных котлов Viessmann Vitoplex 100
Для обеспечения простого монтажа и техобслуживания следует придерживаться указанных размеров; при ограниченном пространстве для монтажа необходимо выдержать минимальные расстояния.
В состоянии при поставке дверь агрегата смонтирована с поворотом влево. Шарнирные болты можно переставить так, чтобы дверь при открытии поворачивалась вправо.
Помещения для установки котлов Витоплекс
Помещения для установки котельных агрегатов должны соответствовать информационному листку DDA “Монтаж и эксплуатация паровых установок с с большим водяным пространством, имеющими маркировку СЕ”.
Комбинированные котлы Viessmann Vitoplex 100 запрещается устанавливать:
– в жилых помещениях, а также под, над и рядом с жилыми помещениями,
– в бытовых и рабочих помещениях, а также под и над этими помещениями; к таким помещениям не относятся помещения без постоянного рабочего места, в которые редко заходят люди, а также диспетчерские и помещения для соответствующего оборудования, обслуживаемого персоналом, ответственным за обслуживание аппарата, или диспетчерами.
В отличие от этого котлы Viessmann Vitoplex 100 могут быть установлены:
– в рабочих помещениях, а также под и над ними,
– под, над и рядом с жилыми помещениями,
– под и над бытовыми помещениями в случае, если произведение значения водонаполнения агрегата в литрах и допустимого рабочего давления в бар не превышает 10000. Это относится также и к тем случаям, когда указанное произведение не превышает 20000.
– допустимое рабочее давление составляет не более 32 бар,
– водонаполнение аппарата не превышает 10000 л,
– допустимая паропроизводительность не превышает 2 т/ч и
– установка оборудована и проверена согласно TRD 604.
Условия монтажа котлов Viessmann Vitoplex 100
Чтобы избежать неисправностей и повреждений установки, должны быть соблюдены следующие требования:
– В помещениях, в которых возможно загрязнение воздуха галогенуглеводородами (которые, например, содержатся в аэрозолях, красках, растворителях и моющих средствах), котел можно устанавливать только при условии, что предприняты достаточные меры для поступления незагрязненного воздуха для сжигания топлива.
– Не допускать сильного запыления.
– Не допускать высокой влажности воздуха.
– Обеспечить защиту от замерзания и надлежащую вентиляцию.
– Монтаж выполнять на ровной поверхности.

Рис.2. Помещение для установки котла Висман Витоплекс
A – Высота подпора (в зависимости от температуры питательной воды, типа питательного насоса, давления нагрузки в баке питательной воды), 1 – Паровой котел, 2 – Горелка, 3 – Шкаф управления, 4 – Удаление шлама, 5 – Питательный насос (при установке учесть необходимую высоту подпора), 6 – Дымоход, 7 – Шламосборник, 8 – Распылительный циркуляционный деаэратор (в качестве альтернативы 9), 9 – Бак питательной воды с деаэратором, 10 – Парораспределитель, 11 – Дозатор, 12 – Водоподготовка (химическая), 13 – Система удаления продуктов сгорания, 14 – Вытяжное отверстие, 15 – Отверстие приточного воздуха
Система удаления продуктов сгорания
Параметры агрегата и системы удаления продуктов сгорания должны быть согласованы между собой.
Согласно EN 13384 и DIN 18160 продукты сгорания должны отводиться в атмосферу через коррозионностойкий дымоход.
Дымовые трубы должны быть газоплотными и изготовлены из металла или негорючих материалов. Трубы должны иметь тепловую изоляцию для предотвращения образования конденсата.
Соединительный элемент между патрубком уходящих газов котла и дымовой трубой должен быть защищен теплоизоляцией. Мы рекомендуем обратиться за консультацией к ответственному мастеру по надзору за дымовыми трубами и дымоходами.
Монтаж горелки
Котел Vitoplex 100 LS, паропроизводительность 0,26-0,7 т/ч
Окружность центров отверстий для крепления горелки, отверстия для крепления горелки и отверстие для ввода трубы горелки соответствуют требованиям EN 303 1. Горелка может быть установлена непосредственно на поворотную дверь аппарата.
Если монтажные размеры горелки отличаются от размеров, указанных в стандарте EN 303 1, то должна быть установлена плита горелки, входящая в комплект поставки. Труба горелки должна выступать из теплоизоляции двери агрегата.
Котел Vitoplex 100 LS, паропроизводительность 0,9-2,2 т/ч
На поворотной двери аппарата необходимо смонтировать плиту горелки, входящую в комплект поставки.
Горелка должна быть смонтирована на плите горелки, ее монтаж без плиты горелки непосредственно на двери невозможен.
Во входящей в комплект поставки плите горелки заказчик должен просверлить отверстия в соответствии с размерами горелки. Труба горелки должна выступать из теплоизоляции двери котла.
Выбор соответствующей горелки
Горелка должна соответствовать номинальной тепловой мощности и аэродинамическому сопротивлению уходящих газов котла. Материал пламенной головы горелки должен выдерживать рабочие температуры не менее 500 C.
Вентиляторная горелка для жидкого топлива – Горелка должна пройти испытания и иметь маркировку согласно EN 267, а также отвечать требованиям TRD 411.
Вентиляторная горелка для газообразного топлива – Горелка должна пройти испытания согласно EN 676 и иметь маркировку СЕ согласно Директиве 90/396/ЕЭС.
Настройка горелки – Отрегулировать расход жидкого или газообразного топлива горелки в соответствии с указанной номинальной тепловой мощностью агрегата.

Рис.3. Основное оборудование котлов Висман Витоплекс 100 с давлением срабатывания предохранительного устройства до 0,5 бар(TRD 701)
A – Шкаф управления Vitocontrol со схемой блокирования, B – Регулятор давления, C – Выпускная линия в атмосферу, D – Паропровод, E – Манометр с контрольным клапаном, F – Реле давления, G – Предохранительный клапан, H – Парозапорный клапан, K – Электрод для регулирования и ограничения уровня воды, L – Удаление воздуха, M – Терморегулятор (поддержание готовности), N – Указатель уровня воды, O – Автоматическое горелочное устройство в соответствии с нормами DIN и требованиями TRD, P – Паровой котел фирмы nViessmann. Давление пара макс. 1,0 бар, R – Вентиль для сброса шлама, S – Регулировочная муфта (дроссель), T – Обратный клапан (питательная вода), U – Запорный клапан (питательная вода), V – Питательный насос, W – Бак питательной воды, X – Питательная вода в соответствии с требованиями, NW – Минимальный уровень воды
Принадлежности комбинированного котла Viessmann Vitoplex 100
Устройства безопасности:
– Предохранительный клапан.
– Уровневый электрод.
– Регулятор давления.
– Ограничитель давления.
– Манометр.
– Указатель уровня воды.
– Ограничитель уровня воды.
– Терморегулятор (поддержание готовности).
Прочие комплектующие:
– Звукопоглощающие подкладки котла.
– Парозапорный клапан.
– Клапан питательной воды.
– Конденсатное хозяйство.
– Обратный клапан питательной воды.
– Циркуляционный насос.
– Автоматический удалитель воздуха.
– Быстродействующий клапан для сброса шлама.
– Обессоливающее устройство с вентилем обессоливания.
– Запорная заслонка.
– Контрфланцы с винтами и уплотнениями.
– Химические и термические установки.
– Горелка для жидкого и газообразного топлива (данные о типах предоставляются по запросу).
– Шкафы управления Vitocontrol котла для настенного монтажа или для
установки на полу.
___________________________________________________________________________
___________________________________________________________________________
___________________________________________________________________________
___________________________________________________________________________
___________________________________________________________________________
___________________________________________________________________________
wssm.ru
Водогрейные котлы Viessmann Vitoplex 100
Стандартный водогрейный котел Viessmann Vitoplex 100 характерного для фирмы Viessmann высокого качества убеждает надежностью работы и выгодным соотношением «цена-производительность».
Преимуществом котла Viessmann является компактность конструкции, облегчающая его подачу на место установки и позволяющая обходиться малой монтажной высотой
Благодаря большому водонаполнению котла Viessmann Vitoplex 100 достигается увеличение длительности включенного состояния горелки. Это позволяет снизить частоту коммутации и уменьшить вредное воздействие на окружающую среду.

За счет широких проходов между жаровыми трубами, большого водонаполнения и сквозного водяного пространства гидравлическое сопротивление на стороне водяного контура настолько мало, что передача тепла котловой воде осуществляется за счет естественной циркуляции под действием сил тяжести; принудительная циркуляция посредством насоса котлового контура абсолютно не требуется. Котлы Viessmann фирмы Viessman средней и большой производительности разрабатываются с использованием самых современных технологий. Методами конечных элементов производится анализ распределения напряжений, в результате чего, в числе прочего, оптимизируются варианты расположения труб и сварные соединения. Постоянный высокий уровень качества обеспечивается за счет современной технологии производства.
Основные преимущества
- Новый двухходовой водогрейный котел Viessmann на жидком/газовом топливе мощностью до 620 кВт проверенного качества фирмы Viessmann.
- Температура подачи до 110 °C.
- Термостатный контроллер Viessmann Vitotronic 100 для однокотельной установки.
- Возможность дооснащения компонентами из программы поставки контроллеров, также для работы в многокотельной установке.
- При мощности до 300 кВт не требуется устройство контроля заполненности котлового блока водой.
- Не требуется минимальный объемный расход теплоносителя.
- Высокая надежность и эксплуатационная безопасность.
![]() | A) За счет широких проходов между жаровыми трубами и большого водонаполнения котлового блока обеспечивается эффективная естественная циркуляция и упрощается гидравлическая стыковка котла Viessmann с системой B) Высокоэффективная теплоизоляция C) Viessmann Vitotronic 100 – новое поколение контроллеров: интеллектуален, удобен в монтаже, эксплуатации и сервисном обслуживании D) Теплоизоляция E) Камера сгорания F) Второй газоход |
![]() | A) Широкие проходы между жаровыми трубами и большое водонаполнение котлового блока B) Высокоэффективная теплоизоляция C) Подключение для горелки согласно EN 303-1 D) Камера сгорания E) Дымоходы |
viessmann.kotelki.ru
| Наименование: | Стоимость, евро: | |
| комплект звукопоглощающих
опор (при необходимости) |
436,00 (575, 720 кВт) | |
| комплект звукопоглощающих
опор (при необходимости) |
374,00 (895 кВт) | |
| комплект звукопоглощающих
опор (при необходимости) |
470,00 (1120 кВт) | |
| комплект звукопоглощающих
опор (при необходимости) |
492,00 (1400 кВт) | |
| комплект звукопоглощающих
опор (при необходимости) |
502,00 (1750 кВт) | |
| ограничитель
уровня воды (доп. резервная защита котла) |
286,00 (при темп. до 110 гр.С) | |
| ограничитель макс.
давления (0,5-6 бар для каждого котла) |
278,00 (при темп. до 110 гр.С) | |
| ограничитель
миним. давления (1 устройсво для многокотл. установки) |
196,00 (при темп. до 110 гр.С) | |
| мембранный
предохранительный клапан (давление срабатывания 3 бар) |
470,00 (575, 720 кВт) | |
| мембранный
предохранительный клапан (давление срабатывания 3 бар) |
596,00 (895, 1120 кВт) | |
| мембранный
предохранительный клапан (давление срабатывания 4 бар) |
387,00 (575, 720 кВт) | |
| мембранный
предохранительный клапан (давление срабатывания 4 бар) |
470,00 (895, 1120 кВт) | |
| мембранный
предохранительный клапан (давление срабатывания 4 бар) |
596,00 (1400, 1750 кВт) | |
www.aotex.ru
VIESMANN VITOPLEX 100. Технический паспорт для заказа и цены: см. впрайс-листе VITOPLEX PDF
VIESMANN VITOPLEX 200
VIESMANN VITOPLEX 200 Низкотемпературные жидкотопливные/газовые водогрейные котлы 90-560 квт Технический паспорт Номер заказа и цены см. в прайс-листе VITOPLEX 200 Тип SX2A Низкотемпературные жидкотопливные/газовые
ПодробнееVIESMANN VITOPLEX 300
VIESMANN VITOPLEX 300 Низкотемпературные жидкотопливные/газовые водогрейные котлы 620-2000 квт Технический паспорт Номер заказа и цены см. в прайс-листе VITOPLEX 300 Тип TX3A Низкотемпературные жидкотопливные/газовые
ПодробнееVIESMANN VITOPLEX 300
VIESMANN VITOPLEX 300 Низкотемпературные жидкотопливные/газовые водогрейные котлы 90-500 квт Технический паспорт Номер заказа и цены см. в прайс-листе VITOPLEX 300 Тип TX3A Низкотемпературные жидкотопливные/газовые
ПодробнееВодонагреватели Viessmann
Водонагреватели Viessmann Емкостной водонагреватель для работы в системе с солнечными коллекторами, тепловыми насосами и твердотопливными котлами Vitocell 050 Технические данные Vitocell 050 (тип SVW)
ПодробнееVIESMANN VITODENS 200-W
VIESMANN VITODENS 2-W Технический паспорт для заказа и цены: см. в прайс-листе VITODENS 2-W Тип B2HA Настенный газовый конденсационный котел, 17, – 1, квт в многокотловой установке до 4, квт для работы
ПодробнееПояснения к прайс-листу
Пояснения к прайс-листу n Данный прайс-лист действителен для России. В прайс-листе содержится следующая программа поставок: котлы малой, средней и большой мощности настенные котлы емкостные водонагреватели
ПодробнееПояснения к прайс-листу
Пояснения к прайс-листу n Данный прайс-лист действителен для России. В прайс-листе содержится следующая программа поставок: котлы малой, средней и большой мощности настенные котлы емкостные водонагреватели
ПодробнееПояснения к прайс-листу
Пояснения к прайс-листу n Данный прайс-лист действителен для России. В прайс-листе содержится следующая программа поставок: котлы малой, средней и большой мощности настенные котлы емкостные водонагреватели
ПодробнееVIESMANN VITODENS 200-W
VIESMANN VITODENS 2-W Технический паспорт для заказа и цены: см. в прайс-листе VITODENS 2-W Тип B2HA Настенный газовый конденсационный котел, от 17, до 15, квт в многокотловой установке мощностью до 6,
ПодробнееПояснения к прайс-листу
Пояснения к прайс-листу n Данный прайс-лист действителен для России. В прайс-листе содержится следующая программа поставок: котлы малой, средней и большой мощности настенные котлы емкостные водонагреватели
ПодробнееVITOGAS 100-F. Телефон: (495) (многоканальный),
Напольные низкотемпературные газовые котлы Vitogas 100-F тип. Номинальная тепловая мощность: 29 квт, 35, 42, 48, 60 квт и 72 квт, 84, 96, 108, 120, 132 и 140 квт. Котлы Vitogas 100-F средней мощности 29-60
ПодробнееПояснения к прайс-листу
Пояснения к прайс-листу n Данный прайс-лист действителен для России. В прайс-листе содержится следующая программа поставок: котлы малой, средней и большой мощности настенные котлы емкостные водонагреватели
ПодробнееVIESMANN VITODENS 200-W
VIESMANN VITODENS 2-W Технический паспорт для заказа и цены: см. в прайс-листе VITODENS 2-W Тип B2HA Настенный газовый конденсационный котел, от 17, до 15, квт в многокотловой установке мощностью до 6,
ПодробнееПояснения к прайс-листу
Пояснения к прайс-листу Данный прайс-лист действителен для России. В прайс-листе содержится следующая программа поставок: котлы малой, средней и большой мощности настенные котлы емкостные водонагреватели
ПодробнееVIESMANN VITODENS 222-F
VIESMANN VITODENS 222-F Технический паспорт для заказа и цены: см. в прайс-листе VITODENS 222-F Тип FS2B Газовый конденсационный компактный котел, 4,8-35,0 квт, для работы на природном и сжиженном газе
ПодробнееПояснения к прайс-листу
Пояснения к прайс-листу n Данный прайс-лист действителен для России. В прайс-листе содержится следующая программа поставок: котлы малой, средней и большой мощности настенные котлы емкостные водонагреватели
ПодробнееПояснения к прайс-листу
Пояснения к прайс-листу n Данный прайс-лист действителен для России. В прайс-листе содержится следующая программа поставок: котлы малой, средней и большой мощности настенные котлы емкостные водонагреватели
ПодробнееПояснения к прайс-листу
Пояснения к прайс-листу n Данный прайс-лист действителен для России. В прайс-листе содержится следующая программа поставок: котлы малой, средней и большой мощности настенные котлы емкостные водонагреватели
ПодробнееПояснения к прайс-листу
Пояснения к прайс-листу n Данный прайс-лист действителен для России. В прайс-листе содержится следующая програа поставок: котлы малой, средней и большой мощности настенные котлы емкостные водонагреватели
ПодробнееVITOMAX D HW. Технический паспорт VITOMAX D HW
VITOMAX D HW Водогрейный, трёхходовой, с двумя жаровыми трубами котёл с допустимой температурой подачи до 150 C Номинальная тепловая мощность от 18 до 38 МВт Технический паспорт Действителен с 1 августа
ПодробнееVITOMAX D HW. Технический паспорт
VITOMAX D HW Водогрейный, трёхходовой, с двумя жаровыми трубами котёл с допустимой температурой подачи до 150 C Номинальная тепловая мощность от 18 до 38 МВт Технический паспорт Действителен с 1 августа
Подробнееdocplayer.ru
VITOPLEX 100
VITOPLEX 100 Однокотловые установки Диапазон номинальной тепловой мощности (кВт) 21.1 621 – 780 781 – 950 951 – 1120 1121- 1350 1351- 17001701- 2000 MG 25 Котел с установочной плитой для монтажа горелки PV11179 12.825,– PV11180 13.417,– PV11181 17.372,– PV11182 19.916,– PV11183 23.657,– PV11184 24.761,– № заказа евро Котел с установочной плитой для монтажа горелки PV11185 13.210,– PV11186 13.802,– PV11187 17.757,– PV11188 20.301,– PV11189 24.042,– PV11190 25.146,– № заказа евро Технические данные Габаритные размеры длина 2115 2215 2465 2665 2850 3010 ширина 1460 1460 1550 1550 1655 1655 высота 1690 1690 1920 1920 2020 2020 мм Масса (с теплоизоляцией) 1490 1575 2260 2525 2920 3170 кг Патрубок подсоединения дымохода 300 300 350 350 400 400 Ø мм 5829 770-4 GUS 21.1– 21
VITOPLEX 100 Многокотловые установки 21.1 Отопительная установка Контроллер Vitotronic 100/300-K Тип GC1B/MW1B, для погодозависимой теплогенерации Vitoplex 100 с основными управляющими контроллерами для многокотловых установок. Погодозависимое каскадное включение до 4 водогрейных котлов с Vitotronic 100 и регулированием до двух отопительных контуров со смесителем • макс. 4 водогрейных котла • с таймером для суточной и недельной программы работы • раздельная настройка временных программ, кривых отопления, заданных значений температуры и режимов работы • регулировка температуры воды по датчику температуры емкостного водонагревателя • коммуникация через шину LON (телекоммуникационный модуль LON встроен в Vitotronic 300, для контроллера Vitotronic 100 модуль поставляется в отдельной упаковке) • с интегрированной системой диагностики и другими функциями Vitotronic 100 Тип GC1B, для погодозависимой теплогенерации В сочетании с Vitotronic 300-K многокотловой установки. • макс. 4 водогрейных котла • для каждого последующего котла многокотловой установки • цифровой контроллер котлового контура • для двухступенчатой или модулируемой горелки • коммуникация через шину LON (посредством телекоммуникационного модуля LON; поставляется в отдельной упаковке) ▬ Комплект поставки: • котловой блок с теплоизоляцией • контроллер котлового контура, комплект электроподключений с кабелем подключения горелки • установочная плита для горелки • контрфланцы Указания! • Допустимая максимальная температура подачи примерно на 15 К ниже температуры срабатывания защитного ограничителя температуры. • Условия эксплуатации и указания по проектированию для гидравлической стыковки водогрейного котла с системой см. в техническом паспорте. • Шкаф управления Vitocontrol по запросу. 5829 770-4 GUS 21.1– 22
www.yumpu.com

